House Plans

(NON-PERMIT READY HOUSE PLANS)

House Plans

Non-Permit Ready House Plans

Our house plans are sold as non-permit ready design packages, meaning they are intended for personal use, inspiration, and planning. These plans are not stamped by a licensed architect or engineer and cannot be submitted directly to your local building authority for permits. Instead, they serve as a complete professional design concept that your local architect, engineer, or builder can adapt to meet specific building codes, bylaws, and permit requirements in your region.

What’s Included with Your Purchase

Each non-permit ready plan comes with a comprehensive set of design documents (CDs), including:

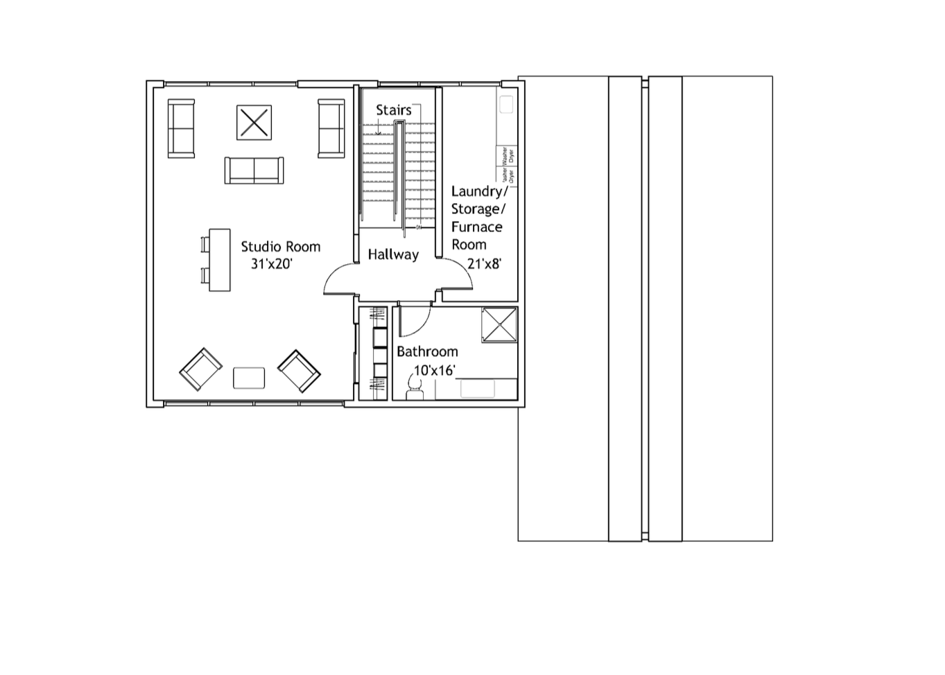
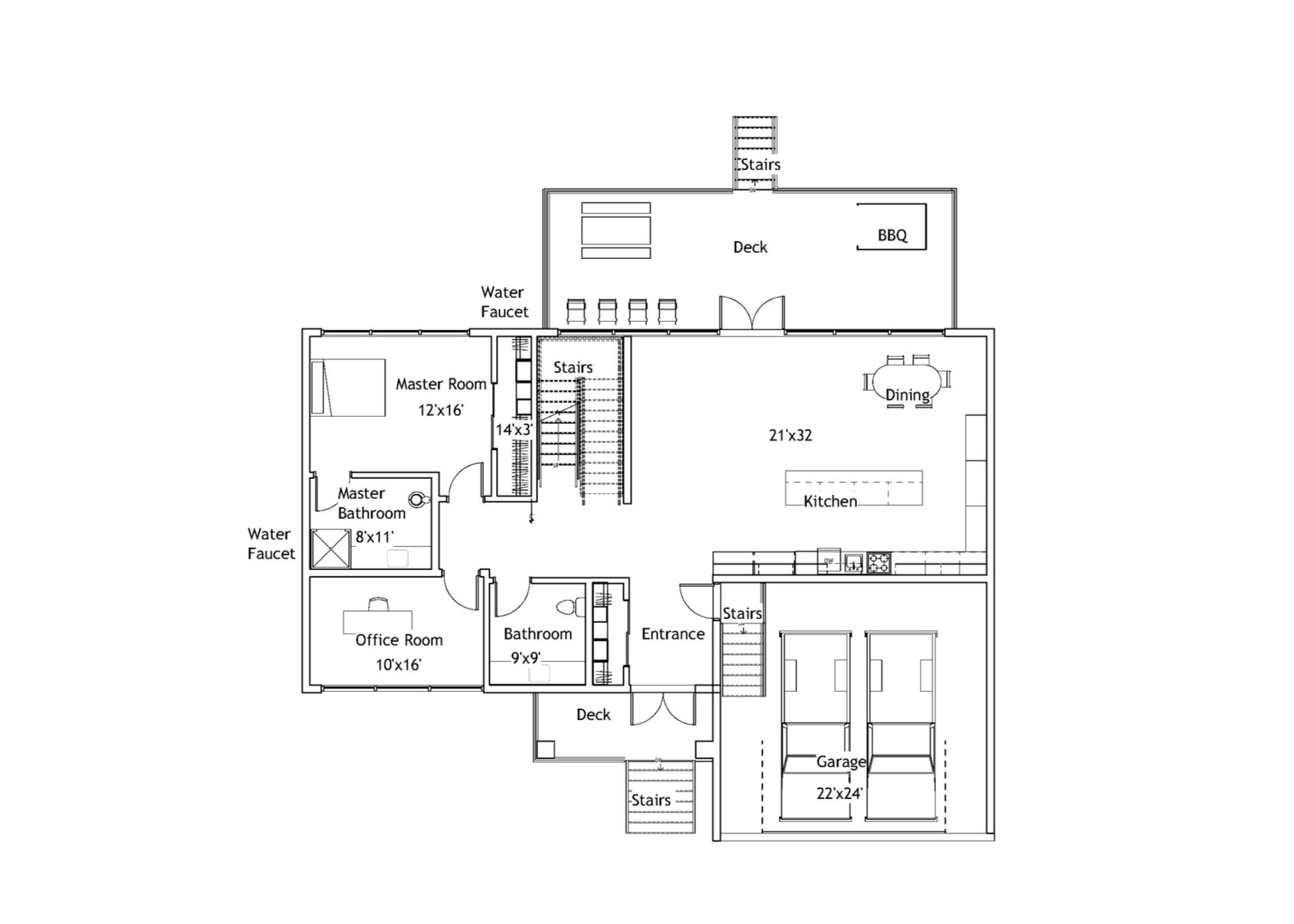
  • Floor Plans – room layouts and dimensions for each level

  • Elevations – exterior views of all sides of the home

  • Roof Plan – roof layout with slope details

  • Section Plan – vertical cut-through drawings for clarity

  • Ceiling Plan – ceiling layouts and details

  • 3D Views – perspective drawings to visualize the design

  • Watermarked Renderings – inspirational images of the design

  • Terms & Conditions – outlining personal-use rights (not for reproduction or resale)

The House Collections

Our House Plan Collections are thoughtfully designed homes that balance beauty, function, and lifestyle. Each plan is crafted to spark inspiration and provide you with a complete design concept that you can customize to your needs. From cozy retreats to expansive family homes, these collections showcase a variety of styles and layouts to suit different ways of living.